Reconstruyendo Casas
Estamos reconstruyendo hogares y restaurando vidas.
La Red de Respuesta a Crisis Hope (HCRN) y nuestro proyecto de reconstrucción, Hope City, están reconstruyendo viviendas para sobrevivientes del incendio que no contaban con seguro o tenían un seguro insuficiente en el momento del incendio. Utilizaremos mano de obra voluntaria y subcontratistas para completar estas viviendas.
HCRN es un contratista autorizado en el estado de California y supervisará todo el trabajo realizado en las viviendas y garantizará que se aprueben las inspecciones para que la construcción de la vivienda no se demore.
Cualificaciones:
- Debe ser propietario de una vivienda
- Debe ser su residencia principal
- Los impuestos sobre la propiedad y los impuestos sobre la renta deben estar al día.
- Debe tener título claro de la propiedad.
- Debe proporcionar documentación del monto adeudado sobre la propiedad.
- Debe ser capaz de mantener el seguro de propiedad y los impuestos de propiedad después de finalizar la construcción de la casa.
- Se da prioridad a personas mayores, discapacitadas, veteranos y familias monoparentales.
- Debe planear vivir en la casa durante al menos cinco años.

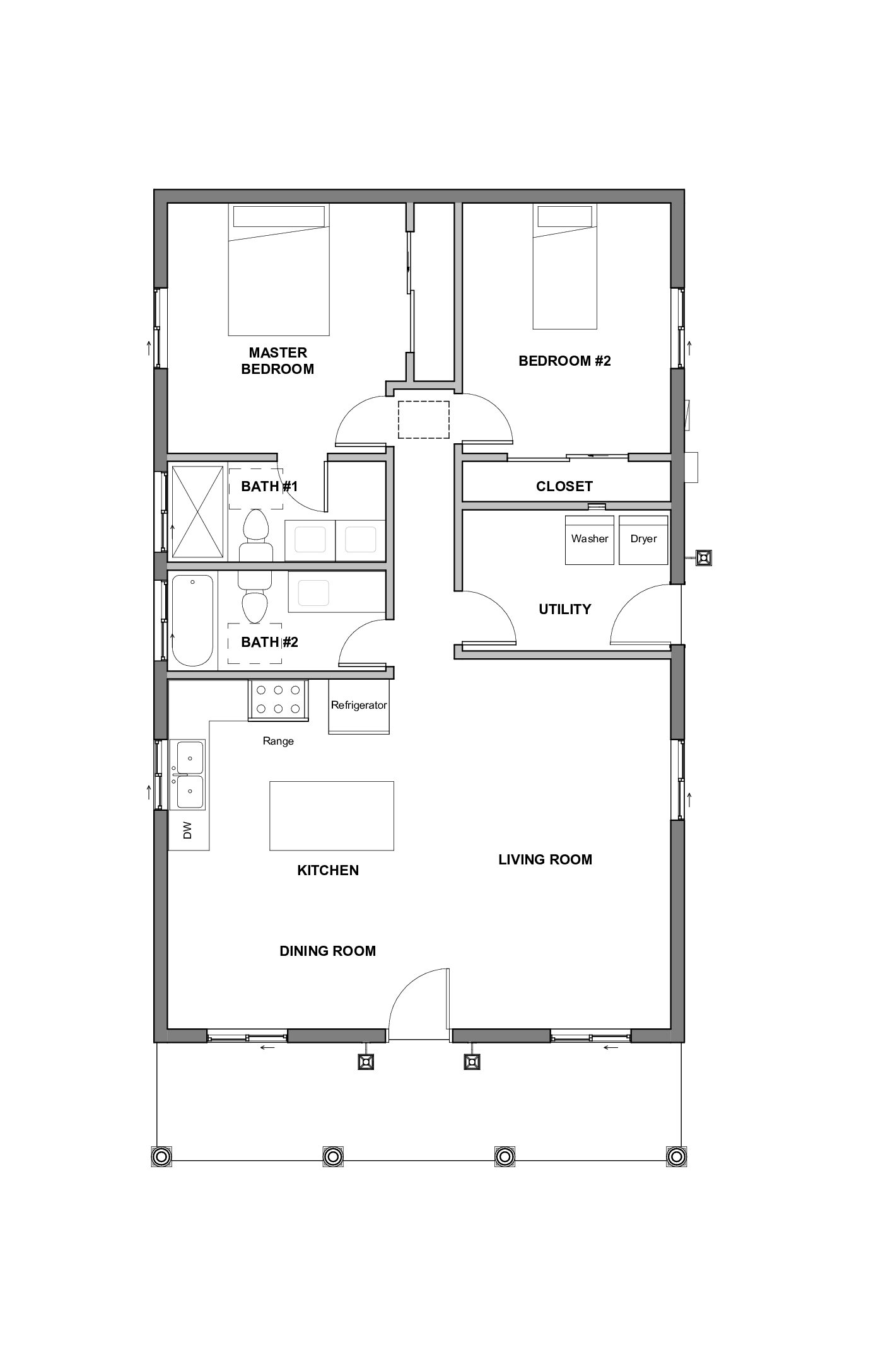
2 dormitorios, 2 baños
Este es nuestro plano de planta para una casa de dos dormitorios y dos baños.
1092 pies cuadrados

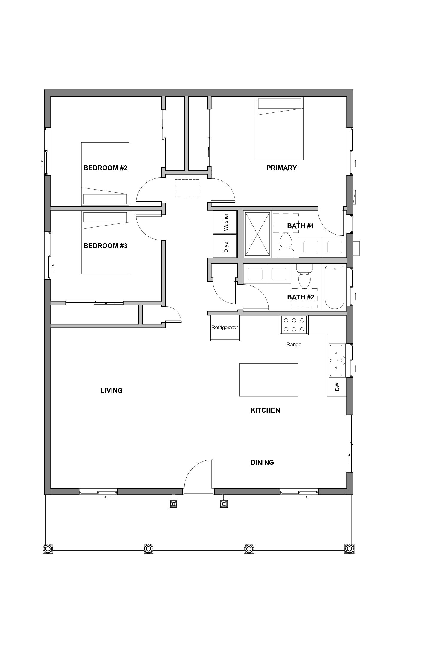
3 dormitorios, 2 baños
Este es nuestro plano de planta para una casa de tres dormitorios y dos baños.
1344 pies cuadrados

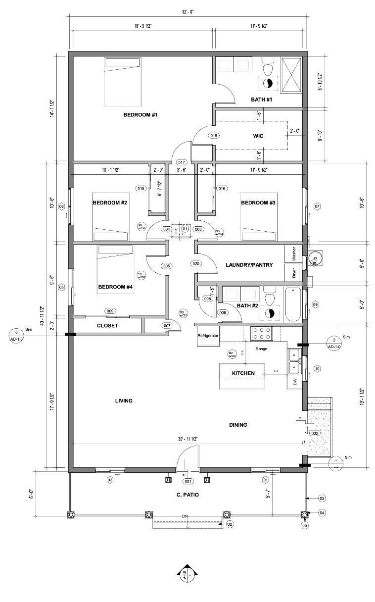
Casa de 4 habitaciones y 2 baños.
Este es nuestro plano de planta para una casa de cuatro habitaciones y dos baños.
1800 pies cuadrados
Aquí encontrará nuestro Formulario de Interés en Reconstrucción de Vivienda. Una vez completado, nos pondremos en contacto con usted para brindarle más información sobre el proceso de solicitud. Además de la solicitud, deberá presentar documentación adicional para que podamos aprobar su solicitud de reconstrucción de vivienda.
Puede ver los documentos adicionales requeridos en esta página y comenzar a recopilarlos para su expediente.
- Identificación con fotografía
- Dos meses de talones de pago o comprobante de ingresos de todos los miembros del hogar
- Recibo de impuesto predial más reciente (Verificación de pago)
- Declaraciones de impuestos estatales y federales más recientes (solicitantes)
- Escritura de propiedad
- Seguro de propietarios de vivienda y verificación de cualquier pago
- Verificación de cualquier programa de asistencia federal o estatal que esté recibiendo actualmente
- Comunicaciones de FEMA con pagos de respaldo o denegación
- Carta de aprobación o denegación de la SBA
- Factura de servicios públicos de la fecha del incendio para demostrar la ocupación
- Extractos bancarios, incluidos los de ahorro
- Cualquier inversión adicional
- Si tiene deudas pendientes a largo plazo, proporcione documentos